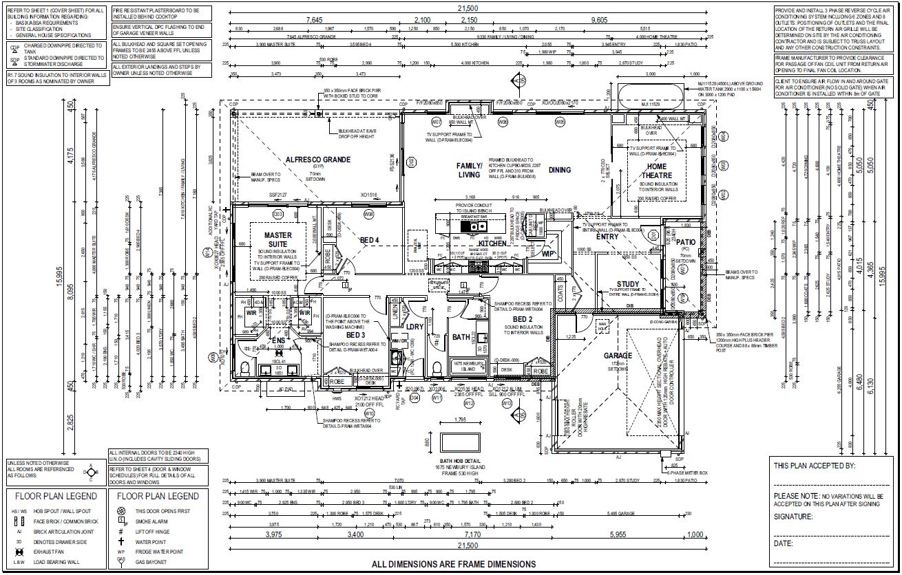
Plans

Standard Plan



Alterations made to the standard plan.
1. Extended the garage 0.5m wider and added a garage door on the back.
2. Extend front patio to cover front of study and join driveway.
3. Alfresco Grande.
4. Larger walk in pantry.
5. Separate main bathroom and toilet.
6. Move bed 2 desk to make room for larger pantry and coats cupboard.
7. 2700 high ceilings.
8. Added XOX0627 window to Master suite rear wall, 2385 FFL.
9. Add second shower head to Ensuite shower.


Final Plans



Front Facade


No comments:

Post a Comment